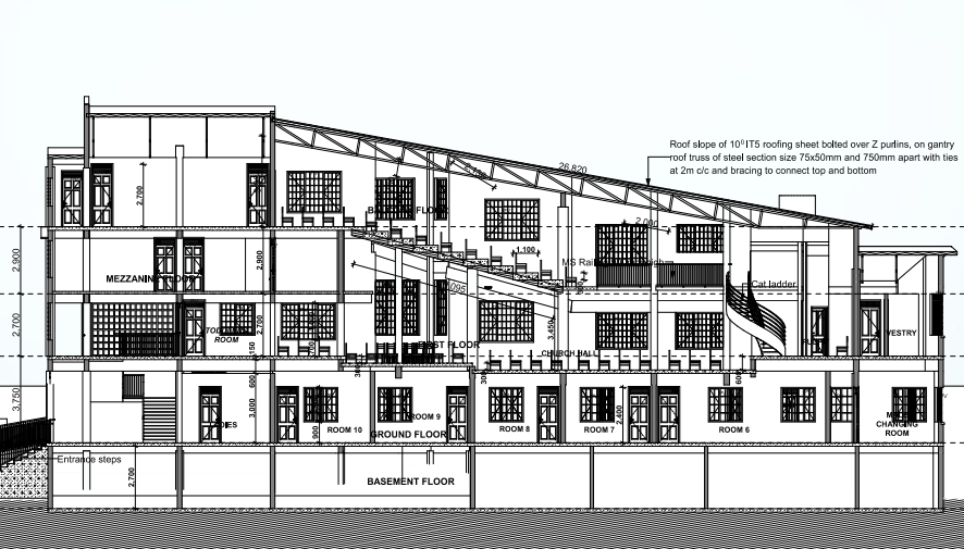
MASDAC is a fast growing church within Homa Bay CBD. It’s undertaking construction works of an ultra-modern complex, which when complete will have costed Ksh 60 million.
The Basement that will hold the guest rooms for the invited choirs.
Ground floor that will host the Urban Centre of Influence
The first floor will be the church hall.
The second floor (mezzanine) will host executive guest rooms.
The third floor will have a conference hall and the balcony